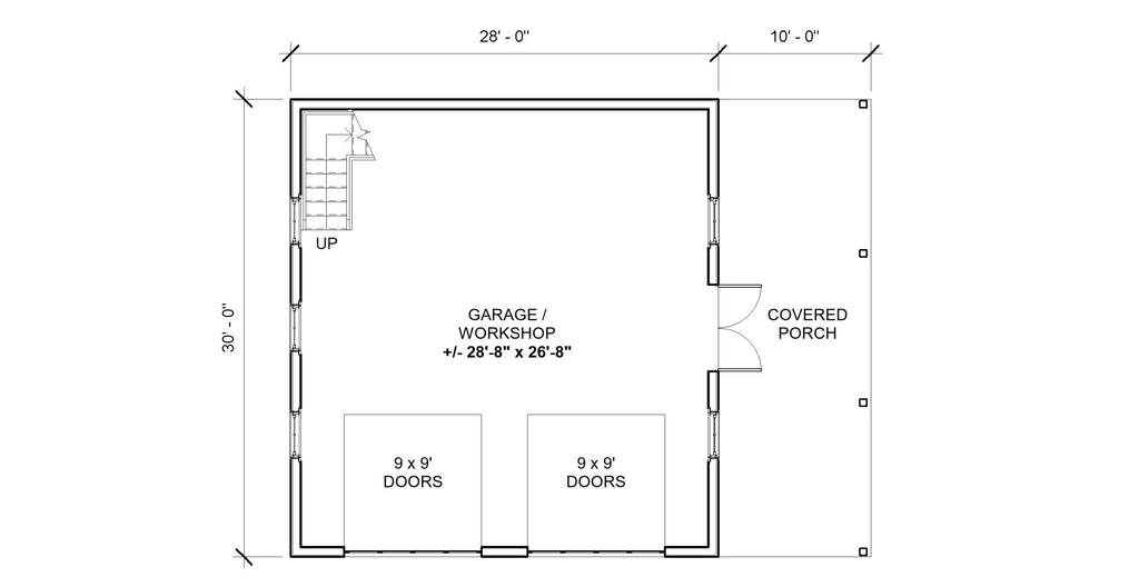
2 Bay Barn Garage Floor Plan, 2 story garage and workshop. 840 sq ft.
This 840 sqft barn style garage has a +/- 28'-8" x 26'-8" garage in the center with 10ft covered porch wing. Two 9x9' garage doors. On the 2nd story is an open storage area.
Once you order you will be provided with an download link to obtain the detailed floor plan drawing. The floor plan is fully dimension-ed and scaled to use on one of your own property!
Perfect for use as your single family residence, or vacation retreat.
Square footage area information:
Ground floor gross area: +/- 840
Ceiling Height: +/- 10ft - ground level
Roof Pitch: 12:12, 4:12
Plan includes:
Detailed First Floor plan with dimensions
Detailed Second Floor plan with dimensions
Door and Window Schedule
Exterior Elevations of all four sides
Roof Plan showing roof pitches
Foundation plan with dimensions in feet and inches
3D Axon Views of Front and Back
1 PDF scaled on 24"x36" Arch D paper.
Plans are fully dimensioned and drawn to scale, they show room dimensions, wall partition locations, schedule showing window and door sizes, locations of plumbing and electrical fixtures (e.g. toilet fixtures including bath, sinks, and kitchen appliances).
Reach out if you need additional custom drawings or details.
****This is a PRINTABLE DOWNLOAD****
Plan is delivered as a printable digital PDF download
No physical printed plans are included with this listing.
To keep drawings affordable site plan, and cabinet plans are not included but can be purchased for an additional fee. Reach out if you need these and/or other drawings or details.
Please message me if you need a custom design or modification / modifying of stock house plans.
---- NOTE ----
The plans offered here are for personal use only.
Please do not redistribute PDF file. You may print out the plans as many times as you want for one project.
Some states may require local engineering.
Plans are for information purposes only. No engineering or architectural stamps are included. You should consult with a qualified licensed builder, contractor or architect who is familiar with your local building codes before beginning any construction project.