Cedar Springs Barndo House Plan with Basement - 6 Bed 3 Bath - Double Garage - Drawings Blueprints + Foundation, Electrical Lighting Plan

Cedar Springs Barndo House Plan with Basement - 6 Bed 3 Bath - Double Garage - Drawings Blueprints + Foundation, Electrical Lighting Plan

$348.00
Skip to product information
Cedar Springs Barndo House Plan with Basement - 6 Bed 3 Bath - Double Garage - Drawings Blueprints + Foundation, Electrical Lighting Plan

Cedar Springs Barndo House Plan with Basement - 6 Bed 3 Bath - Double Garage - Drawings Blueprints + Foundation, Electrical Lighting Plan

$348.00
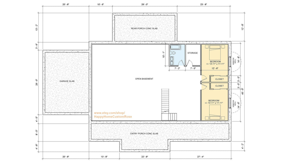
This modern thoughtfully designed open concept plan has 4 bedrooms, 3 Baths, and laundry room. Large and functional double garage. The spacious master bedroom features a private bathroom and walk-in closet. On the back of the house connected to the dining and kitchen is a large outdoor grilling porch so you can enjoy your yard. Custom floor plan concept design, design drawings, PDF format. Concept Design Plans include: Floor plans with dimensions Door and Window Schedule Elevations all four sides Roof Plan Foundation Plan Electrical Lighting Plan Square footage information: HEATED LIVING L1: +/- 2,355 SF BASEMENT: +/- 2,355 SF GARAGE: +/- 600 SF Plan is delivered as an printable digital PDF downloads No physical printed plans are included with this listing. ----------------------------------------------------------------------------- Please message me if you need a custom design or modification / modifying of stock house plans. Plans are for information purposes only. No engineering or architectural stamps are included. You should consult with a qualified licensed builder, contractor or architect who is familiar with your local building codes before beginning any construction project. Due to variation in different States and local building departments, these plans are not intended for immediate permitting, but can be adjusted by your builder or designer if needed. Some states may require additional information and/or local engineering, check with local requirements. Please do not redistribute PDF file. You may print out the plans as many times as you want. The plans offered here are for personal use only.

You may also like